$2,150,000
 $11,542 est/mo Sourced by Back At You

552 Avery Creek,Arden, NC 28704

Arden, NC 28704

Share:

Description

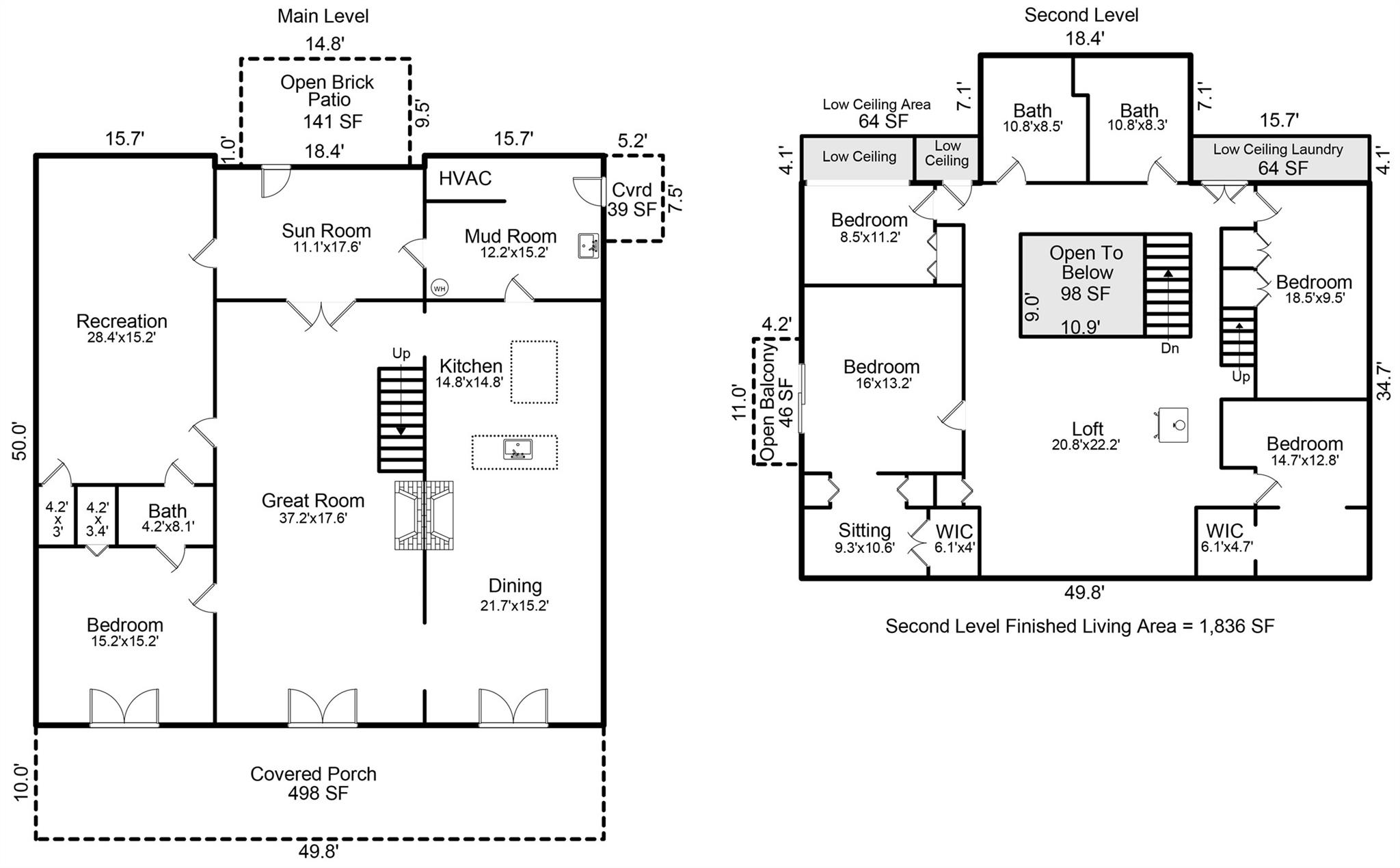
Absolutely stunning 26-acre property in Arden’s picturesque Avery Creek. Welcome to Whippoorwill, an everyday escape or second-home retreat in the mountains. Its beautiful features include the fields that greet you, a running creek, four-stall barn, sports field, large fire pit, and picnic area. Its 4000+ SF historic log home has space for everyone with its five bedrooms, rec room, and ~500 SF screened-in porch for relaxing while you watch the wildlife. Property also includes two rustic cabins, with their own kitchenettes and baths, close to the main home. Bring your horses, gardening tools, lawn games, and hiking shoes, as this special place is a true gem of the Asheville area. Sellers’ family has loved this property since its purchase in 1962! No restrictions to seller’s knowledge, other than R-2 county zoning (buyer to verify). Property is about 20 min. to downtown Asheville and 30 minutes to Brevard. Come see this charming, private property for yourself!

Details

MLS #4162380
Listing TypeFor Sale
StyleHouse
Sub-TypeResale
StatusActive
Year1915
Days On Site477
Listing Provided ByMosaic Community Lifestyle Realty | Megan Shook

Features

Bed(s)5
Bath(s) 3 Total
SQ Feet4,308
Story(s)2
ZoningR-2
Acreage26.00
Water FrontYes

Interior

CoolingCentral Air
HeatingForced Air
Interior FeaturesBuilt-in Features, Entrance Foyer, Kitchen Island
AppliancesDishwasher, Dryer, Electric Oven, Electric Range, Electric Water Heater, Refrigerator, Washer

Exterior

Exterior FeaturesFire Pit
RoofArchitectural Shingle
Construction MaterialsCedar Shake, Wood
Foundation DetailsCrawl Space
Lot FeaturesCleared, Creek Front, Green Area, Level, Open Lot, Pasture, Private, Rolling Slope, Sloped, Creek/Stream, Wooded

Parking

Garage Yes / NoNo
Parking FeaturesCircular Driveway, Driveway

Other

List AorLand of The Sky Association of Realtors

Taxes

Property998200

Area Information

StateNC
CountyBuncombe
CityArden
Zip Code28704
AreaBuncombe
School DistrictT.C. Roberson
Elementary SchoolAvery's Creek/Koontz
High SchoolT.C. Roberson
Sourced by Back At You

Request a showing

Request a showing

Loading Form

 Listings courtesy of Canopy MLS as distributed by MLS GRID.

Based on information submitted to the MLS GRID as of November 8, 2025 at 4:03:33 PM PST All data is obtained from various sources and may not have been verified by broker or MLS GRID. Supplied Open House Information is subject to change without notice. All information should be independently reviewed and verified for accuracy. Properties may or may not be listed by the office/agent presenting the information.

The Digital Millennium Copyright Act of 1998, 17 U.S.C. § 512 (the “DMCA”) provides recourse for copyright owners who believe that material appearing on the Internet infringes their rights under U.S. copyright law. If you believe in good faith that any content or material made available in connection with our website or services infringes your copyright, you (or your agent) may send us a notice requesting that the content or material be removed, or access to it blocked. Notices must be sent in writing by email to DMCAnotice@MLSGrid.com.

“The DMCA requires that your notice of alleged copyright infringement include the following information: (1) description of the copyrighted work that is the subject of claimed infringement; (2) description of the alleged infringing content and information sufficient to permit us to locate the content; (3) contact information for you, including your address, telephone number and email address; (4) a statement by you that you have a good faith belief that the content in the manner complained of is not authorized by the copyright owner, or its agent, or by the operation of any law; (5) a statement by you, signed under penalty of perjury, that the information in the notification is accurate and that you have the authority to enforce the copyrights that are claimed to be infringed; and (6) a physical or electronic signature of the copyright owner or a person authorized to act on the copyright owner’s behalf. Failure to include all of the above information may result in the delay of the processing of your complaint.

Contact

Learn More About This Property

StateNC
CountyBuncombe
CityArden
Zip Code28704
AreaBuncombe
School DistrictT.C. Roberson
Elementary SchoolAvery's Creek/Koontz
High SchoolT.C. Roberson
Sourced by Back At You
Listing Updated: November 8, 2025 at 1:12:55 AM PST
Real Estate Links Our Domains